< Return To Search Results


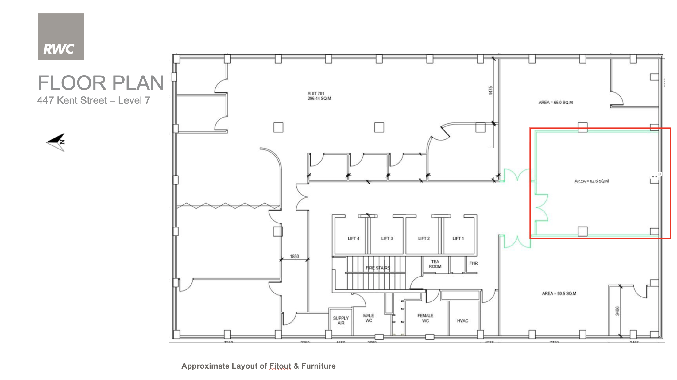
Suite 7.03/447 Kent Street SYDNEY


For Lease

Price: $850 psmpa plus GST
Area: 63sqm approx



Interpro House is a 22-storey commercial office building in the heart of Sydney CBD, diagonally opposite to Town Hall rail station. 5 min walk to Gadigal Metro. 4 high–speed lifts, basement parking and on-site building manager. New bathrooms in 2025 across each floor. Shower facilities.

- Warm shell
- Direct Lift Exposure
- Good natural light
- Available March 2026



View Map

Agent Details

Julian Milne

M0411 480 719
EEmail me
VDownload VCard

Anthony Harris

M0409 319 060
EEmail me
VDownload VCard